Cầu nâng cắt kéo nâng bụng 3 tấn Gaochang 3.0S là kiểu lắp âm đáp ứng tốt nhu cầu sửa chữa nhanh cho hãng ô tô, garage ô tô. Thương hiệu Gaochang đã tồn tại và phát triển trên 20 năm tại thị trường Trung Quốc. PEAK chuyên sản xuất và phân phối toàn cầu một loạt các loại cầu nâng ô tô bao gồm: cầu nâng 2 trụ, 4 trụ, cắt kéo, cầu di động, máy ra vào lốp… Sản phẩm được nhiều công ty lớn nhỏ trong và ngoài nước đánh giá cao về chất lượng, độ bền, thẩm mỹ, giá cả cạnh tranh nhất so với thị trường. Công Ty CP TB Tân Minh Giang là đơn vị nhập khẩu 100% thương hiệu GAOCHANG phân phối tại thị trường Việt Nam.
Mục lục
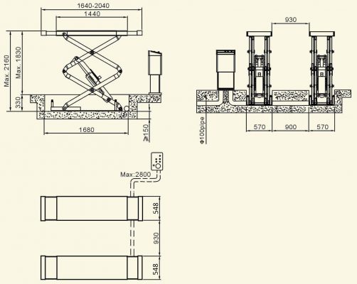
THÔNG SỐ KỸ THUẬT
- Hàng sản xuất tiêu chuẩn Châu Âu chất lượng cao, hoạt động ổn định.
- Thông số kỹ thuật:
- Bàn nâng có thể kéo dài
- Công suất nâng: 3 tấn
- Công suất mô-tơ: 2.2 Kw
- Chiều cao nâng tối đa 2160 mm
- Chiều cao nâng tính từ mặt nền xưởng: 1830 mm
- Chiều dài bàn nâng: 1440 – 2040 mm
- Áp suất khí nén cần cung cấp: 6 -8 kg/cm2
- Điện áp làm việc: 3pha 380V hoặc 1pha 220V

Bản vẽ kỹ thuật kích thước cầu nâng cắt kéo nâng bụng 3 tấn Gaochang 3.0S

Bản vẽ kỹ thuật làm móng cầu nâng cắt kéo nâng bụng 3 tấn Gaochang 3.0S
HÌNH ẢNH LẮP ĐẶT HOÀN THIỆN – NGHIỆM THU THIẾT BỊ




+ Tham khảo thêm một số loại cầu nâng ô tô: Cầu nâng 2 trụ, Cầu nâng cắt kéo Peak, Cầu nâng 4 trụ nâng toàn bộ xe.
CÔNG TY CỔ PHẦN THIẾT BỊ TÂN MINH GIANG
Địa chỉ: Số 20, Cộng Hòa, P.12, Q. Tân Bình,Tp.HCM.
Hotline: 0917.121.144 Email: vietthanhkd@tanminhgiang.com
Hãy liên hệ với chúng tôi để được tư vấn sản phẩm phù hợp với nhu cầu của bạn!
Sự hài lòng của quý khách là thành công của chúng tôi!


















Đánh giá
Chưa có đánh giá nào.