Cầu cắt kéo nâng bụng âm nền Hofmann EELRBP758BC3 là cầu cắt kéo nâng bụng chuyên phục vụ sửa chữa nhanh các ô tô con, du lịch cho hãng ô tô, garage ô tô. Được biết đến nhiều tên gọi khác nhau như: cầu nâng xếp, cầu nâng gấp gọn, cầu nâng chữ X… Chuyên dùng phục vụ nhu cầu sửa chữa nhanh, thay lốp, bảo dưỡng phanh, phù hợp tiêu chuẩn của hãng ô tô. Thương hiệu Hofmann (Snap-on)-Mỹ đã tồn tại và phát triển trên 20 năm tại thị trường, cung cấp xuất khẩu nhiều thị trường quốc tế. Hofmann chuyên sản xuất và phân phối toàn cầu một loạt các loại cầu nâng ô tô bao gồm: cầu nâng 2 trụ, 4 trụ, cắt kéo, bộ cân chỉnh góc lái, máy cân bằng lốp, máy ra vào lốp… Sản phẩm được nhiều khách hàng trong và ngoài nước đánh giá cao về chất lượng, độ bền, thẩm mỹ, giá cả cạnh tranh nhất so với thị trường. Công Ty CP TB Tân Minh Giang là đơn vị nhập khẩu, phân phối thương hiệu SNAP-ON phân phối tại thị trường Việt Nam.
- Cầu nâng cắt kéo nâng bụng là thiết bị không thể thiếu tại các Garage lớn nhỏ tại Việt Nam, các hãng Ô TÔ đang sử dụng như Mitsumitsi, Toyota,….
- Hofmann là hãng sản xuất đã từ rất lâu đời sự tín nhiệm cao đến từ các khách hàng lớn nhỏ trên cả nước
- Cầu nâng cắt kéo có rất nhiều loại, cầu nâng toàn xe và nâng bụng có đa dạng các loại lắp âm và lắp nổi phù hợp cho tất cả mặt bàng cho các hãng sửa xe, Garage,…
Mục lục
THÔNG SỐ KỸ THUẬT CẦU CẮT KÉO NÂNG BỤNG ÂM NỀN HOFMANN EELRBP758BC3
- Lock khoá cơ khí an toàn chắc chắn.
- Chiều dài bàn nâng có thể thay đổi 1585 – 1785 mm
- Tải trọng: 3500 Kg
- Chiều cao nâng tối đa: 1735 mm
- Chiều rộng bàn nâng: 510 mm
- Nguồn điện sử dụng: 380V/3pha
- Vị trí đặt tủ điện cách hố móng không quá 2000mm (chi tiêt trong bản vẽ móng)
- 4 dây thủy lực về tủ điện
- 2 dây hơi mở lock khóa

Bản vẽ kỹ thuật kích thước cầu cắt kéo nâng bụng âm nền Hofmann EELRBP758BC3

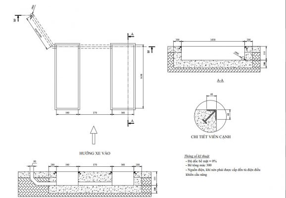
Bản vẽ kỹ thuật làm móng cầu cắt kéo nâng bụng âm nền Hofmann EELRBP758BC3
HÌNH ẢNH LẮP ĐẶT HOÀN THIỆN – NGHIỆM THU THIẾT BỊ CẦU CẮT KÉO NÂNG BỤNG ÂM NỀN















+ Tham khảo thêm một số loại cầu nâng ô tô: Cầu nâng cắt kéo Peak, Cầu nâng 4 trụ nâng toàn bộ xe. , Cầu nâng 2 trụ cổng trên Hofmann EELR761 , Cầu nâng cắt kéo kiểm tra góc lái HOFMANN 734AP
CÔNG TY CỔ PHẦN THIẾT BỊ TÂN MINH GIANG
Địa chỉ: Số 20, Cộng Hòa, P.12, Q. Tân Bình,Tp.HCM.
Hotline: 0917.121.144 Email: vietthanhkd@tanminhgiang.com
Hãy liên hệ với chúng tôi để được tư vấn sản phẩm phù hợp với nhu cầu của bạn!
Sự hài lòng của quý khách là thành công của chúng tôi!
















Đánh giá
Chưa có đánh giá nào.